Proposta 16090101
Proposta de produtos e serviços de entretenimento digital para Antônio Carlos.
Objeto
Esta proposta comercial endereça o Projeto Luz AC de fornecimento de produtos e execução de serviços de infraestrutura de rede, integração de equipamentos de áudio e vídeo e entretenimento digital para a residência de Antônio Carlos.
Os produtos e serviços que compõe o objeto desta proposta contemplam o atendimento dos seguintes requisitos:
- Cabeamento AV Sala de estar
- Cabeamento escritório
- Em um lado, três estações de trabalho, cada uma com duas tomadas elétricas e uma de rede (RJ45);
- No lado oposto, uma estação de trabalho, com duas tomadas elétricas e uma de rede (RJ45); e
- No lado oposto, duas impressoras, com duas tomadas elétricas e duas de rede (RJ45).
- Espelho banheiro
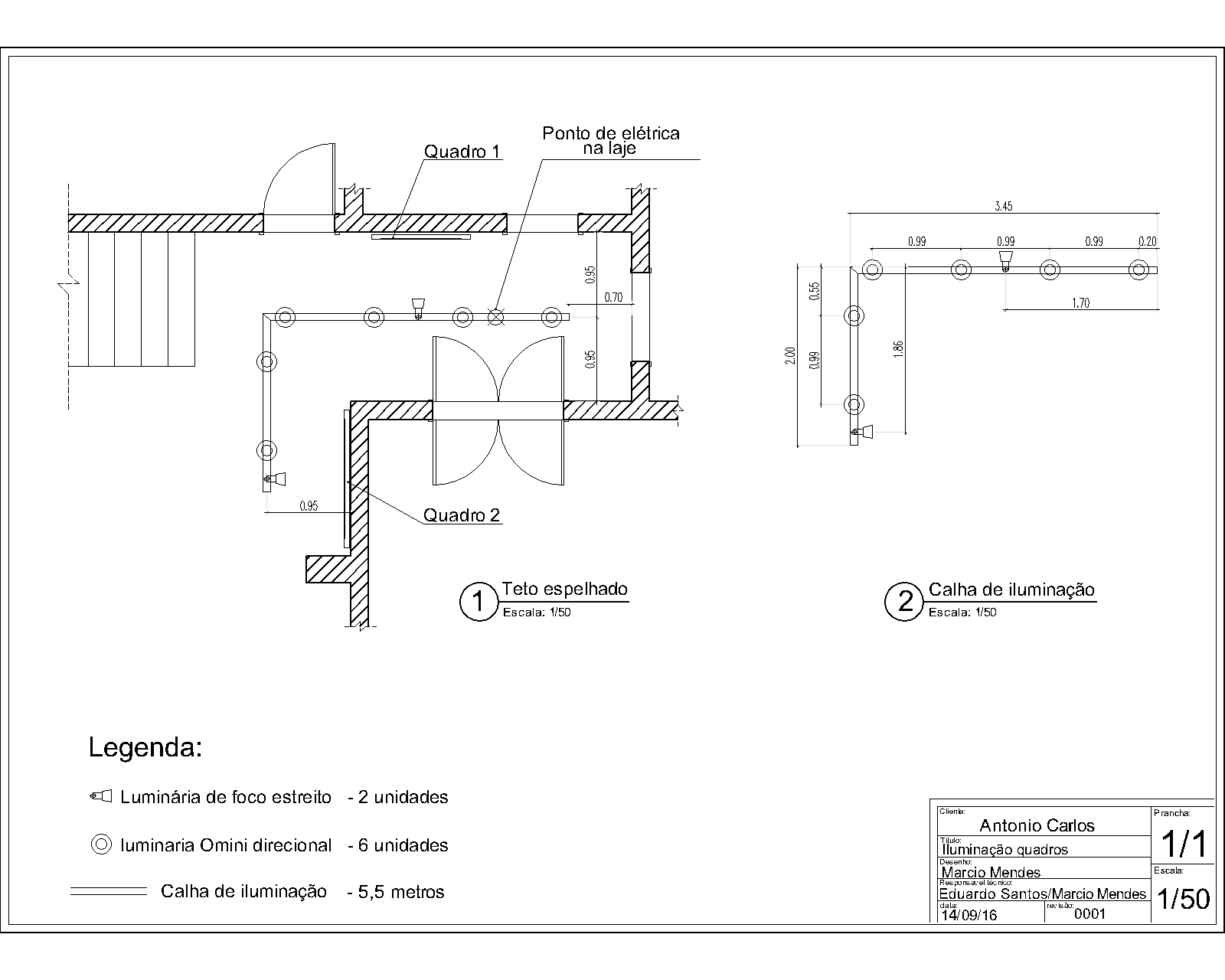
- Iluminação quadros
- dois spots direcionais fechados em tom quente direcionados para dois quadros, sendo um no corredor e outro na sala de estar; e
- dois pendentes omnidirecionais abertos em tom frio para iluminação da passagem/corredor.
- Iluminação Quarto 3
- dois spots articulados direcionais fechados para leitura em tom quente na parede da cabeceira da cama;
- um spot articulado direcional fechado para leitura em tom quente na parede da TV de forma a iluminar a bancada; e
- um painel decorativo iluminado na forma de uma caveira acima de um painel para suporte e acabamento da saída elétrica.
- 50% a serem pagos no aceite da proposta.
- 50% a serem pagos no aceite do projeto.
- A aquisição dos cabos necessários para a interconexão dos equipamentos correrá por conta do cliente. A ksatek fará a compra e será reembolsada a partir da apresentação das notas fiscais;
- A mudança de escopo do projeto, após aprovação desta proposta, supõe alteração no orçamento, salvo acordo entre as partes;
- Quaisquer produtos ou serviços adicionais necessários para a realização deste projeto correrão por conta do cliente;
- Quaisquer aquisições de produtos adicionais necessários à execução do projeto ensejarão o pagamento à ksatek de 15% do valor a título de consultoria;
- Alterações no cronograma de atividades do projeto, efetuadas pelo cliente, terão impacto computado na data de entrega; e
- Eventos de indisponibilidade de acesso da equipe ksatek ao local do projeto conforme definido pelo cronograma terão impacto computado na data de entrega e, caso não sejam previamente negociadas, terão impacto no valor do projeto.
Será disponibilizado um cabeamento de áudio e vídeo (AV) para a Sala de estar de forma a conectar o rack de equipamentos com a TV.
Será instalada uma infraestrutura de elétrica e dados utilizando tubulação aparente do tipo condulete de alumínio anodizada em tom bronze/dourado.
Esta infraestrutura terá previsão para:
Será substituído o atual espelho do banheiro do Quarto 1 que, atualmente, possui nove partes por um novo, inteiro, na medida de 1,61mx1,43m.
Serão instalados dispositivos para iluminação do corredor da Sala de estar do primeiro pavimento. Estes dispositivos de iluminação serão instalados em um trilho em formato de “L” de acordo com o croqui disponibilizado e terá:
Serão instalados dispositivos para iluminação do Quarto 3 no segundo pavimento. Estes dispositivos de iluminação serão instalados de acordo com:
Os dispositivos para iluminação serão integrados, assim como todas as outras seções elétricas do quarto a um comando através de app a ser disponibilizado no smartphone.
Preços para o projeto
O preço total dos serviços para o projeto é de R$16.020,00 (dezesseis mil e vinte reais).
Este preço consolida os seguintes grupos de itens:
| Cabeamento AV | ||||
|---|---|---|---|---|
| Serviços | ||||
| Item | Descrição | Qtd | Val | Tot |
| Instalação | Preparação e execução de todos os serviços | 32hs | 100,00 | 3.200,00 |
| Produtos | ||||
| Calhas e dutos sistema x | Diversas marcas e modelos | 1 | 500,00 | 500,00 |
| Cabeamento | Cabos e conectores | 1 | 500,00 | 500,00 |
| Total: | 4.200,00 | |||
| Cabeamento escritório | ||||
|---|---|---|---|---|
| Serviços | ||||
| Item | Descrição | Qtd | Val | Tot |
| Instalação | Preparação e execução de todos os serviços | 32hs | 100,00 | 3.200,00 |
| Produtos | ||||
| Tubos, conduletes e conectores | Em alumínio a ser galvanizado | 1 | 1.600,00 | 1.600,00 |
| Galvanoplastia | Para todo o material | 1 | 1.200,00 | 1.200,00 |
| Total: | 6.000,00 | |||
| Espelho banheiro | ||||
|---|---|---|---|---|
| Serviços | ||||
| Item | Descrição | Qtd | Val | Tot |
| Aquisição, transporte e instalação | Preparação e execução de todos os serviços | 18hs | 1.800,00 | 1.800,00 |
| Total: | 1.800,00 | |||
| Iluminação Quadros | ||||
|---|---|---|---|---|
| Serviços | ||||
| Item | Descrição | Qtd | Val | Tot |
| Instalação | Preparação e execução de todos os serviços | 32hs | 100,00 | 3.200,00 |
| Produtos | ||||
| Spots, trilhos e lâmpadas | A serem definidos junto ao cliente | 1 | 2.250,00 | 2.250,00 | Total: | 5.450,00 |
| Iluminação Quarto 3 | ||||
|---|---|---|---|---|
| Serviços | ||||
| Item | Descrição | Qtd | Val | Tot |
| Instalação | Preparação e execução de todos os serviços | 64hs | 100,00 | 6.400,00 |
| Produtos | ||||
| Spots, trilhos e lâmpadas | A serem definidos junto ao cliente | 1 | 2.100,00 | 2.100,00 |
| Automação e acionadores | Para o controle remoto | 1 | 2.700,00 | 2.700,00 |
| Painel caveira | A ser definido junto ao cliente | 1 | 2.000,00 | 2.000,00 |
| Total: | 13.200,00 | |||
| Produtos | ||||
|---|---|---|---|---|
| Item | Subtotal | Desconto | Total | |
| Cabeamento AV | 1.000,00 | N/A | 1.000,00 | |
| Cabeamento Escritório | 2.800,00 | N/A | 2.800,00 | |
| Espelho Banheiro | N/A | N/A | N/A | |
| Iluminação Quadros | 2.250,00 | N/A | 2.250,00 | |
| Iluminação Quarto 3 | 6.800,00 | N/A | 6.800,00 | |
| Total produtos: | 12.850,00 | N/A | 12.850,00 | |
| Serviços | ||||
| Item | Subtotal | Desconto | Total | |
| Cabeamento AV | 3.200,00 | N/A | 3.200,00 | |
| Cabeamento Escritório | 3.200,00 | N/A | 3.200,00 | |
| Espelho Banheiro | 1.800,00 | N/A | 1.800,00 | |
| Iluminação Quadros | 3.200,00 | N/A | 3.200,00 | |
| Iluminação Quarto 3 | 6.400,00 | N/A | 6.400,00 | |
| Total serviços: | 17.800,00 | 1.780,00 | 16.020,00 | |
| Total (produtos+serviços): | 28.870,00 | |||
Forma de pagamento
O pagamento será realizado de acordo com:
Impostos
Nos valores desta proposta já estão inclusos todos os impostos incidentes.
Prazo de entrega
O prazo de entrega do projeto é de 60 (sessenta) dias úteis a serem contados a partir da data de início dos trabalhos.
Parte considerável das atividades do projeto será realizada nas dependências do cliente. É necessário, portanto, liberação de acesso ao ambiente para a equipe do projeto de acordo com as datas a serem definidas no cronograma. As atividades técnicas do projeto serão realizadas em horário comercial.
Premissas para a realização do projeto
Esta proposta de serviços foi baseada nas seguintes premissas:
Validade
Esta proposta é válida por 15 (quinze) dias a partir da data de sua apresentação, podendo ser prorrogada a critério da ksatek mediante consulta do cliente.
Aceite da proposta
O aceite da proposta pelo cliente será efetuado pela assinatura do “de acordo” abaixo.
De acordo:
_________________, _____ de ____________de 2016.
ksatek Arquitetura e Tecnologia


